︎
foreword
about aitch (dan hapton)
contact
︎
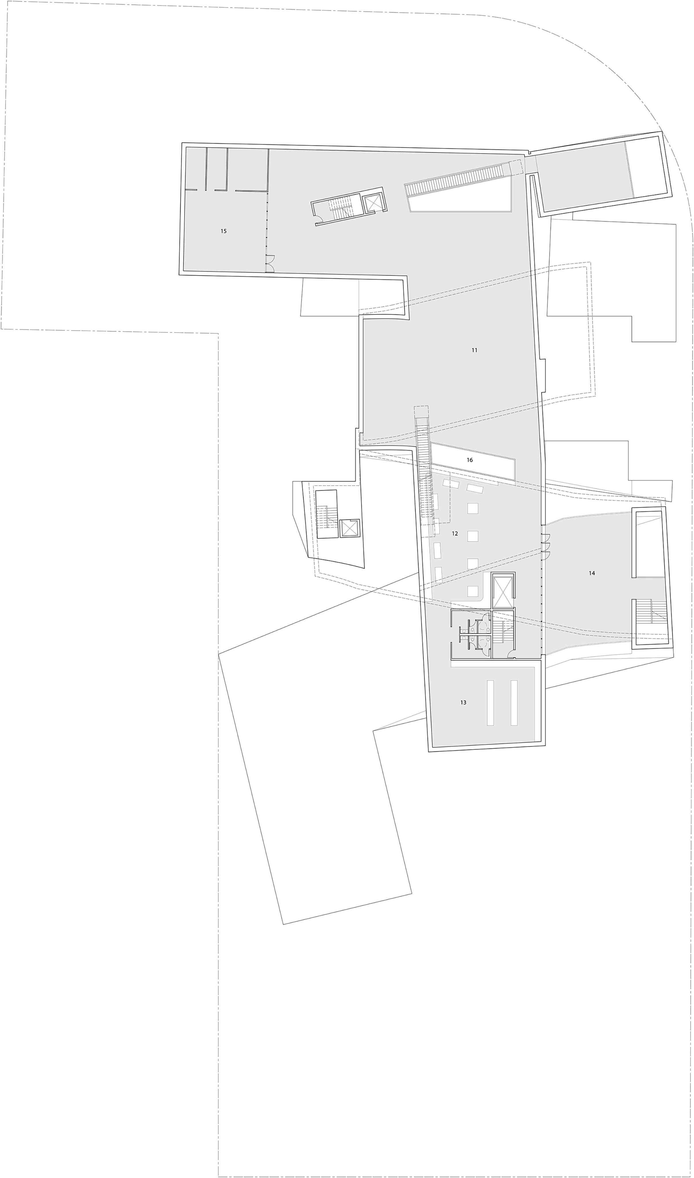
MUTE MONUMENTS
BAUHAUS
PROJECT
for a 38000 sqft museum in Dessau Germany
Unbuilt 2015
Collab w/ Russell Thomsen
RELATED PAGES ︎
about aitch (dan hapton)
contact
︎